Leave a Message

Thank you for your message. We will be in touch with you shortly.

Explore Our Properties

Property Description

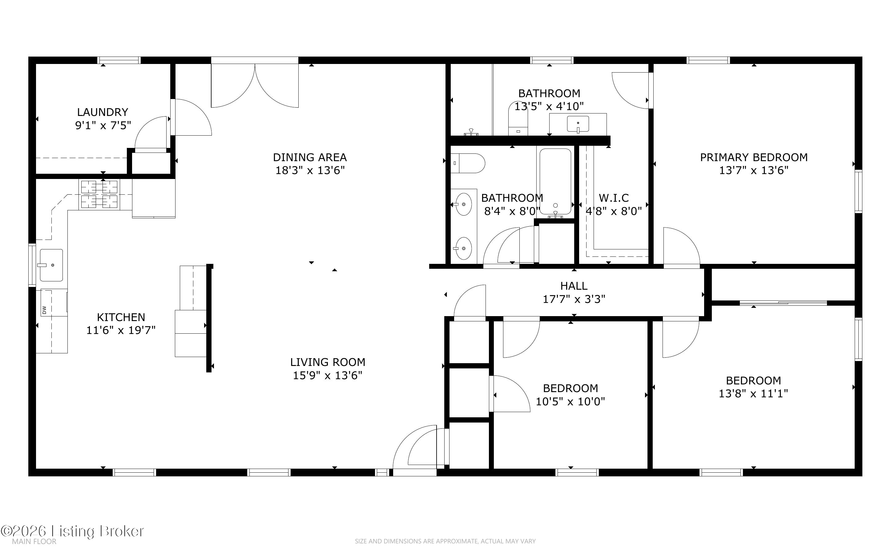
This beautifully updated all-brick ranch blends timeless construction with modern design in an open, functional layout featuring 3 bedrooms and 2 fully remodeled bathrooms. The kitchen boasts brand-new quartz countertops and opens seamlessly to the main living areas, creating an ideal space for both everyday living and entertaining. Recent major updates include a new roof March 2023, new water heater Nov 2023, all windows replaced in May 2021, and new gutters and fascia replaced in June 2023, offering added peace of mind for the next owner. The spacious primary suite is a true retreat, featuring a walk-in closet and a stunning en suite bathroom with an oversized walk-in shower for a spa-like experience. Outdoor living is equally impressive. A large carport is currently utilized as an outdoor living and entertaining space, while a brand-new privacy fence provides a secluded backyard setting. The detached shed is fully insulated and equipped with electric, cable, and internet perfect for a home office, studio, or workshop. With thoughtful updates throughout, flexible indoor and outdoor living spaces, and a move-in-ready condition, this home is conveniently located just minutes from all the shopping, dining, and amenities Mt. Washington has to offer.

Overview

Property Status
Sold
Lot Size
0.5 Acres
MLS ID
1708692
Property Type
Residential
Year Built
1973

Features & Amenities

Total Area
1,645 Sq.Ft.
Neighborhood
Mount Washington
Architecture Styles
Ranch
Stories
1
Garage Spaces
1.0
Water Source
Public
Utilites
Electricity Connected, Fuel:Natural
Roof
Shingle
Lot Features
Dead End, Level
Parking
Detached, Driveway
Heat Type
Forced Air, Natural Gas
Air Conditioning
Central Air
Substructure
Crawl Space
School District
Bullitt
Sales Price
$329,000

Downloads

337 Gene St

Schedule a Tour

I would love to help you see this beautiful home! As a full-service real estate agent, I can help you tour. Please submit an offer, and answer questions about the buying process.

Thank you

for your interest in 337 Gene St, Mt Washington, KY 40047

337 Gene St
Navigate
Mount Washington

Explore Mount Washington

read more

I'm Interested In

337 Gene St

or
  • CallKevin Edwards

    License #218358

    (502) 797-9438
  • Follow Us On Instagram